텔레풍켄 10인치 풀레인지(Telefunken Ela L6) 세팅하기
오디오 사부 SWH형님댁에 앰프 오버홀하러 방문했는데 자작스피커가 있었는데 약간 투박한 모습과 달리 섬세하고 예쁜 소리를 내주고 있었다. 궁금해서 여쭈어 보니 텔레풍켄 10인치 풀레인지(Telefunken Ela L6)에 이소폰 트위터를 후면개방형 인클로저에 세팅하셨다고 한다. 몇년전 사용했었던 텔레풍켄 8인치 필드의 음색을 좋아했었기 때문에 빨간배꼽이라고 불리는 Telefunken Ela L6에 관심이 커지기 시작했다.

*SWH형님의 Telefunken Ela L6
텔레풍켄(Telefunken)이라는 독일 회사는 오디오를 취미로 하는 사람들, 특히 빈티지 오디오를 좋아하는 사람들에게는 익숙한 회사인데 대부분 텔레풍켄 진공관 몇개는 갖고 있을 것이다. 텔레풍켄은 1903년 독일의 Siemens와 AEG가 공동 설립한 회사로 원래는 무선통신 기술(라디오 등)을 개발하는 회사였지만, 이후 오디오 장비, 진공관, 마이크, 스피커 등 다양한 분야로 확장되었고 1930년대~1960년대 사이 오디오 기술의 선두주자가 되었다.

*출처:https://www.soriaudio.com/index.php?mid=part&document_srl=55578146
Telefunken은 진공관 생산으로 유명하지만, 플레인지 스피커도 생산했는데 1950~60년대 독일 하이파이 오디오 전성기에 만들어진 명품들 중 하나로 꼽히고 있고 지금도 빈티지 오디오 애호가들 사이에서 "부드럽고 따뜻한 소리", 넓은 음장감, 그리고 고풍스러운 디자인 덕분에 인기가 많은 편이다.
특히 Telefunken ELA L6, 일명 빨간배꼽으로 알려진 텔레풍켄 10인치 풀레인지 유닛은 1950년대~60년대 초 독일 방송용/산업용 장비에서 사용된 전설적인 풀레인지 스피커 유닛으로 Telefunken은 ELA 시리즈(독일어로 Elektroakustik 장비)를 방송국, 학교, 회관, 극장 등에 공급했고 그 중, ELA L6은 방송용, PA 시스템, 오디오 모니터링 용도로 사용된 고급 풀레인지 유닛이었다.

*출처 : https://dedee.jp/blog/vintage-speaker/telefunken-ela-6-red-nipple/
음색 성향( Sound Signature)은 저음은 깊지는 않지만 단단하고 자연스러운 저역을 내주고 있고, 중음은 보컬과 어쿠스틱 악기 재생력이 뛰어난데 전체적으로 따뜻하고 섬세함이 돋보인다고 한다. 고역대는 부드럽고 확산감이 있으나 자극적이지 않아 전반적으로 "소리의 결이 살아 있고" , 오래들어도 피곤하지 않은 음색으로 정평이 나있다. 추천 장르는 빠르고 강한 비트의 록이나 EDM보다는 자연음 재생에 적합한데 재즈, 클래식, 보사노바, 포크, 가요 등에 좋다고 한다.
알니코 마크넷을 채용하여 섬세하면서도 질감있는 소리를 만들어 주고, 얇고 탄력있는 풀펄프 콘지를 사용하여 고역이 부드럽고 중역이 자연스럽고 풍부하며, 돔형 캡(Dust Cap)을 채용하여 고역을 확장하여 보통 10Khz까지도 자연스럽게 올라가는 구조이다. 크기는 10인치, 약 25cm이고 임피던스는 4옴, 재생대력은 약 60Hz~15kHz, 감도(SPL)은 94~96dB이다.

*출처 : https://dedee.jp/blog/vintage-speaker/telefunken-ela-6-red-nipple/
검색을 해보니 초기형은 빨간배꼽에 니플이 돌출되어 있고 후기형은 니풀이 없어 좀 밋밋했고, 후면의 모습도 달랐다.


*출처 : https://metalicglassdays.blogspot.com/2015/04/telefunken-ela-l6-1262-red-nipple.html
기본적인 조사를 끝내고 목표는 초기형으로 하고 구입단계로 들어갔다. 기본적으로는 미국에서 찾기 시작하지만 생산국인 독일이므로 독일도 함께 찾아보기 시작했다. 그리고 얼마 뒤, 이재성선수와 홍현석선수가 활동하는 FSV 마인츠 05구단이 있는 독일 마인츠에서 초기형 Telefunken Ela L6 판매글이 올라왔다. 판매자분의 사진으로는 유닛은 완벽해 보였고 니플이 달린 초기형이었는데 문제는 가격이었다. 두어차례 판매자분과 이메일과 오퍼를 주고 받아 적당한 네고를 하고 구입에 성공하였다.



*판매자분 사진
3주뒤에 택배가 도착했는데 포장을 풀면서 기겁을 했다 ㅠ 이중박스로 포장을 해서 제대로 포장해서 보내주었다고 생각했는데 안쪽 박스를 열어보니 뽁뽁이 등 보강재가 전혀없이 유닛만 넣고 포장을 해버린 것이다. 후면은 매탈이니까 손상이 안되었다고 해도 전면의 콘지가 제일 걱정이어서 두려운 마음에 뒤집어 보니 다행히 손상없이 무사했다. 판매자분이 오디오를 모르시는 분인지, 강심장을 지닌 분인지 모르겠는데 만약 손상이 있었다면 독일까지 환불해야 하는 복잡한 절차는 상상하기도 싫은 일인데 다행이었다.



아뭏튼 유닛은 무사히 도착했으니 소리를 들어보고 싶어 급히 연결을 했는데 맹유닛이지만 마음에 드는 소리를 들여주었다. 역시 명불허전인가,,,
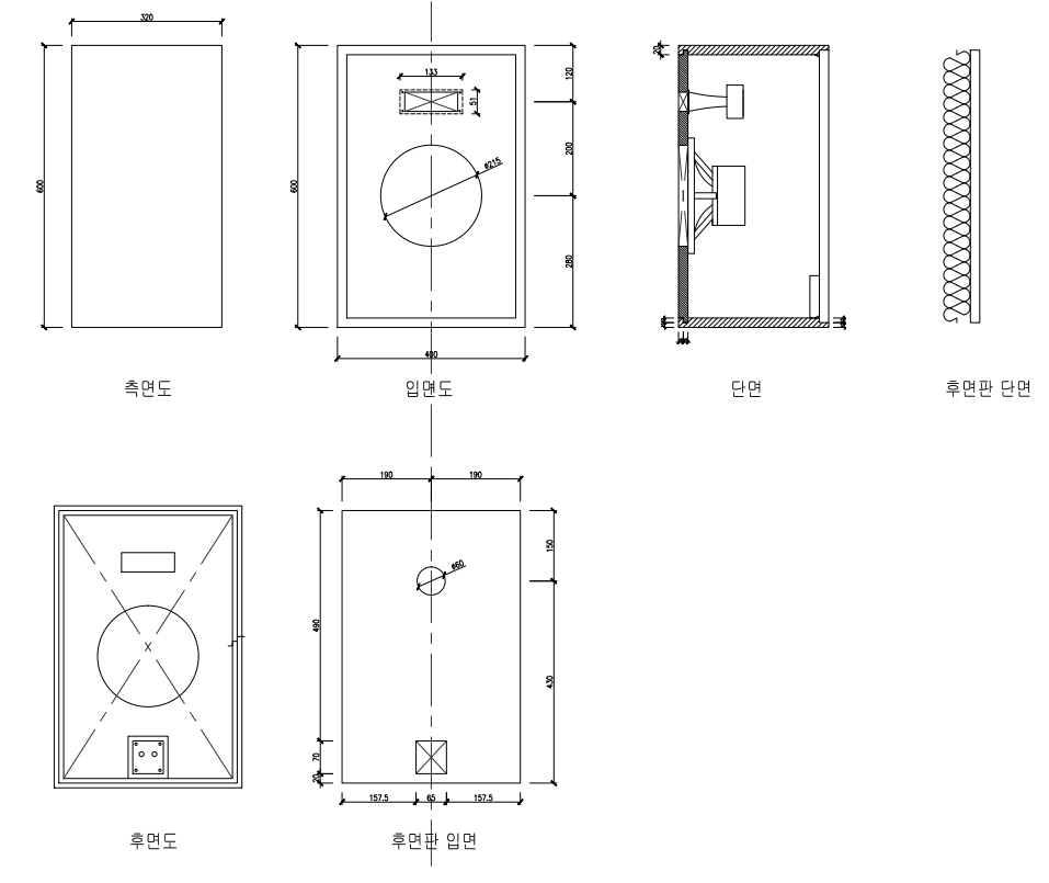
유닛을 구했으니 다음 단계는 인클로져이다. 대전의 지인께서 목공에 조예가 깊어서 인클로저 도면을 부탁해서 받아보았다. 그러나 공방에 제작을 하게 되면 고생도 안되고 깔끔하게 만들 수 있겠지만 경비부담이 되어서 일단 장터에서 구해보기로 했다. 그런데 8인치 유닛용 인클로저는 종종보여도 10인치 유닛용 인클로저는 잘 안보였다.

그러던중, 장터에 올라온 8인치 인클로저인데 판매자분께 연락해보니 베플을 교체하면 10인치도 가능하다고 해서 판매자분께 연락드려 10인치로 고쳐달라고 부탁하고 방문해보니 영등포에 위치한 작은 중고 오디오샵이었다. 아주 잘 마른 나무로 몇조 만들었는데 다 팔리고 마지막 남은 한조라고 한다. 들어보니 잘 마른 덕에 가벼워 통울림이 좋을 것 같았다.

*판매자분 사진
유닛, 인클로저도 준비되었으니 이제 스피커를 만들어보자. 그동안 모아 놓았던 EV T-35 트위터와 오일콘덴서, 튜브링크에서 구해 놓은 바인딩포스트도 이번 기회에 사용하려고 한다. 그런데 1마이크로페럿 오일컨덴서에 물린 T-35 컨덴서 용량이 작아 충분한 트윗소리를 내주지 못했고, EV T-35는 사각형 모양인데 인클로저의 트윗 설치를 위한 원형 타공에 세팅하기는 좀 어색해서 다른 대안을 찾기로 한다.

결국 트윗은 SWH형님과 같은 이소폰 트윗을 구했고, 2마이크로페럿 컨덴서는 빈티지 코넬 오일컨덴서를 구했는데 아마도 지금은 금지된 독극물 성분이 들어있을 것 같은 포스있는 모습니다 ㅎ



혹시 몰라 튜브링크 이사장님께 구입해서 오래동안 보관하고 있던 바인딩포스트를 드디어 장착하였고, 조심스럽게 유닛을 베플에 고정하고 원래 달려있던 케이블을 바인딩포스트쪽에 납땜하였다.


다음 단계는 트윗을 세팅하는데 실력없는 자가 늘상 그렇듯 작업하는 모습이 정신사납기만 하다 ㅎ

트윗과 컨덴서를 연결하고 인클로저에 수납을 하였다. 혹시 컨덴서가 떨어져 유닛에 손상될 가능성이 있어 피스로 단단히 고정시켰다. 이로서 Telefunken Ela L6 세팅 대장정을 끝낼 수 있었다.

드디어 완성!! 요즘 안방에서 주력으로 사용중인 매킨토시 c4프리, mc30 파워앰프에 연결하였다.

c4프리, mc30 파워, 하이파이로즈 250a에 타이달로 이글스의 호텔켈리포니아를 녹음해보았다. 실제로 듣는 음질이 충분히 전달되지 않아 아쉽지만 좋은 소리를 내주고 있어 만족스럽다. 저역은 아무래도 플레인지의 한계로 아쉽지만, 고역은 부드럽고 찰랑거리며, 중역은 풍부하면서 섬세하여 내가 좋아하는 소편성 클래식, 재즈, 여성보컬, 국악 등에서는 마음에 드는 소리를 내주고 있어 오래동안 곁을 지키며 좋은 음악을 들려줄 것이다. 이제 정말로 스피커는 졸업해도 되지 않을까,, ㅎ
늘 도움을 주시는 SWH형님께 감사를 드리며 글을 마친다.
'audio > speaker' 카테고리의 다른 글
| 작센베르크(Sachenwerk) 8인치 필드스피커 세팅 (4) | 2024.09.10 |
|---|---|
| ar4의 동반자로 부엉이를 데려오다(ar4x) (2) | 2024.06.13 |
| 젠센 8인치 유닛, jensen p8um (1) | 2024.06.05 |
| ar의 작은 거인 ar4, 반려 스피커로 모셔오다. (0) | 2024.05.09 |
| (참고자료)텔레풍켄 10인치 풀레인지(Telefunken Ela L6) (0) | 2022.09.15 |
댓글
이 글 공유하기
다른 글
-
작센베르크(Sachenwerk) 8인치 필드스피커 세팅
작센베르크(Sachenwerk) 8인치 필드스피커 세팅
2024.09.10 -
ar4의 동반자로 부엉이를 데려오다(ar4x)
ar4의 동반자로 부엉이를 데려오다(ar4x)
2024.06.13 -
젠센 8인치 유닛, jensen p8um
젠센 8인치 유닛, jensen p8um
2024.06.05 -
ar의 작은 거인 ar4, 반려 스피커로 모셔오다.
ar의 작은 거인 ar4, 반려 스피커로 모셔오다.
2024.05.09